Az ARCHLine.XP egy épületinformációs modellező (BIM) szoftver szakemberek számára.
A MEP a csővezeték és a csatorna rövidítése, amelyek az ARCHLine.XP MEP által jelenleg kezelt mérnöki szakterületek.
Célja hogy a MEP-et egy BIM-modellben olyan módon használják fel, amely lehetővé teszi az építészek és a gépész tervezők közös munkáját az építési projekt minden szakaszában.
Speciális funkciók segítik a tervezőket a tervezési feladatok szinkronizálásában és munkájuk összekapcsolásában.
Ilyen pl. az automatikus útválasztó, a rendszer fogalma, csővezeték átmérő számítás, paraméteres tartalomkönyvtár.
Az ARCHLine.XP 2023 Professional alapértelmezés szerint MEP eszközökkel rendelkezik, és a MEP modul tartalma:
Rendszer + számítás + interferencia
Mintaprojektek:
www.archline.hu/public/downloads/eng/projects/IPSAR_ARCH+MEP_BIM_C.pro
www.archline.hu/public/downloads/eng/projects/Project_MEP.pro
A MEP rendszer alapjai
Nyomvonal: a rendszer elméleti 3D-s helyét határozza meg
Fizikai hálózat: csövek, csatornák, összekötő elemeket tartalmazó tárgyakkal összekötve, a csatlakozó pontokon át.
A csatlakozó meghatároz egy síkot, egy profilt rajta, a rendszert és az áramlási irányt. A rendszertől függően fizikai jellemzőket is hordozhat, ami nagyban befolyásolja a rendszer generált 3D-s paramétereit, a generáló algoritmus valósághoz közelítésének függvényében.
A fizikai hálózat alapja, hogy a csatlakozók egymáshoz kapcsolódjanak, vagyis a profiljuk alapján a térbeli megjelenésük egybeessen, a megadott irányuk megfelelő legyen és a rendszereknek is meg kell felelniük egymásnak.
A rendszer lehet nyitott vagy zárt.
Nyitott rendszer esetén a program hibát jelez a rendszerellenőrzés során. (A vízvezeték rendszert úgy is el lehet zárni, hogy a végén csapot vagy tömítőelemet helyezünk el)
Egy nyomvonal csak egy rendszerhez tartozhat. A rendszereket nem lehet keverni.
Általánosságban elmondható, hogy a rendszerek mechanikus elemekkel kapcsolhatók össze, azaz egy objektumhoz több rendszer is csatlakoztatható (pl.: gázkazán: hidegvíz, melegvíz, fűtés, villany), de csak a megfelelő rendszerhez tartozó csatlakozón keresztül. .
Egy objektum általában legalább 2 csatlakozót tartalmaz. Az elemek csak ezeken a csatlakozókon keresztül csatlakoztathatók.
MEP interfész
A szoftver rendelkezik egy szalagmenü sorral a MEP modellezéséhez.
A modellező eszközök a következők:
● Csővezeték
● Csatorna
● Kábelcsatorna
● Idomok
● MEP objektumok
A vizualizációs eszközök a következőkre oszlanak:
● ARCH-MEP nézet: vizuális effektek az épitészeti és a MEP modellek együttes megjelenítéséhez
● Részletek: a 2D-s nézet ábrázolási lépték
● Méretezés: a méretezés cimkék mint megjegyzések
Az ARCHLine.XP MEP rendszerkoncepciót valósít meg, azaz képes azonosítani az összekapcsolt elemeket, amelyek ugyanannak az üzemi rendszernek a részét képezik (pl. használati melegvíz, vagy szellőzés, stb...), és olyan tömegműveleteket végez, mint a méretezés, színezés, számítás és kiegyensúlyozás, mindig úgy, hogy az elemek egymással kapcsolatban maradnak.
A szalag első gombjáról elérhetőek a MEP-elemek tulajdonságai. Lehetőség van például egy cső vagy csatorna tulajdonságainak megállapítására, egy SET mentésére vagy visszahívására.
MEP Elemek
Objektumok és csatlakozók
A MEP-objektumok speciális 3D-objektumok, amelyek tartalmaznak csatlakozókat. A Design Centerben, a szoftverkönyvtárban az előnézetben egy speciális jelölővel azonosíthatók.
A csatlakozók olyan rögzítési pontok, amelyek lehetővé teszik a csövek vagy csatornák összekapcsolását.
A csatlakozó a MEP-modellezés alapvető eleme, megadja a csatlakoztatandó cső/csatorna átmérőjét vagy szelvénytulajdonságait, valamint a rendszer tulajdonságait, azaz azt a MEP-diszciplínát, amelyre az adott csatlakozási pont vonatkozik. A csatlakozóhoz egy sor nem geometriai információ is hozzárendelhető, mint például az áramlási sebesség vagy az áramlás iránya, az esetleges veszteségek vagy egyéb, tervezési célokra felhasználható értékek.
Egy MEP objektum tulajdonságainak lekérdezésével a szoftver megjeleníti a csatlakozókat.
A csatlakozók a 2D-nézetben és a 3D-nézetben jelölőelemekként/fogóként jelennek meg. Új csöveket kezdhet el rajzolni belőlük.
Új MEP objektum létrehozása
Egy új MEP-objektum létrehozásához egyszerűen helyezzen el egy tetszőleges 3D-objektumot a munkaterületen belül, és kezdjen el csatlakozókat társítani hozzá.
A szalag parancsainak segítségével létrehozhat csatlakozókat a csövekhez vagy a csatornákhoz, illetve téglalap alakú, nem pedig kör alakú keresztmetszettel.
Az objektum kiválasztása után kattintson az egyik felületére. A középpontja felismerésre kerül, és a csatlakozót beilleszti rá.
Ezt követően az egér és a képernyőn megjelenő párbeszédpanelek segítségével meghatározható a cső kivezetési iránya, a csatlakozó tényleges keresztmetszeti profilja és a rendszer tulajdonságai.
Ha az objektum nem rendelkezik a csatlakozó elhelyezésére alkalmas sík felületekkel, néhány további parancs lehetővé teszi virtuális támasztási síkok létrehozását a csatlakozó későbbi létrehozásához.
MEP objektumok külső fájlokból RFA formátumban
A .rfa (Revit Family) formátum egy nagyon elterjedt formátum, amely az üzemmérnöki komponensek gyártói körében szabványként terjedt el. Az interneten számos olyan forrás található, ahonnan ebben a formátumban lévő mep objektumok lekérdezhetők. Az ARCHLine.XP importálja az .rfa formátumot, és lehetővé teszi a mep objektumok közvetlen letöltését olyan portálokról, mint például a BIM Objects.
MEGJEGYZÉS: A gyártók gyakran „túloznak” a modelljeik összetettségével, mivel általában sok geometriai jellegű részletet tartalmaznak (gyakran ugyanazokat a 3D modelleket használják, amelyeket a gyártáshoz is használnak). A nagyon nehéz objektumok használata megnehezíti a tervező számára, hogy egy teljes projektben nagy mennyiséget kezeljen belőlük. Javasoljuk, hogy gondosan válassza ki a tervezéshez használt objektumokat.
MEP objektum importálásához használja a Fájl menü - Importálás - RFA, TVT parancsokat.
A fájl kiválasztása vagy a belső ARCHLine.XP böngészőn keresztül valamelyik kompatibilis portálról történő letöltése után a szoftver automatikusan megnyitja a vázlatmódot, ideiglenesen lezárva a projektet, amelyen éppen dolgozott.
Ebben a modalitásban csak az importált objektum létezik, és annak minden összetevője felrobban.
Ebben a módban, ha szükséges, megtisztíthatjuk az objektumot a felesleges 3D részektől, vagy hozzáadhatunk másokat.
Az objektum mentéséhez használja a Sketch Mode menüpontokat.
A szoftver megkérdezi, hogy hová mentse az objektumot a könyvtárban.
Megjegyzés: az importált BIM paraméterek az objektummal együtt kerülnek elmentésre. Ha vannak, a csatlakozók is tárolásra kerülnek.
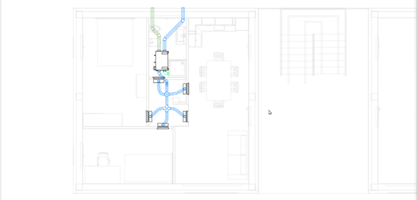
Csővezetékek
A Pippe elem lehetővé teszi a MEP objektumok közötti csatlakozó csövek rajzolását. Mint minden szoftverelemnek, ennek is van egy szakasza a tulajdonságok meghatározására a beszúrás előtt.
Tulajdonságok
Az alapvető tulajdonságok a 2D ábrázoláshoz kapcsolódnak, mint például a szín, vonaltípus, vonalvastagság stb.
Megjegyzés: A prioritás olyan mező lehet, amely segít optimalizálni a terv ábrázolását, amikor több cső halad át egymáson, mivel akár 8 átfedő szint meghatározását is lehetővé teszi.
A geometriai paraméterekre áttérve megtaláljuk a profilszelvény meghatározására szolgáló paramétereket, amely lehet kör vagy téglalap alakú, az anyagot, valamint a csatornához kapcsolódó egyéb, számítási célokra használt információkkal kapcsolatos paramétereket.
A gyakran használt típusok kezeléséhez a SETS elmenthető vagy visszahívható.
A MEP entitások speciális entitások: a beszúrás előtt meghatározott tulajdonságok akkor érvényesek, ha a „szabad” rajzolási technikát használják, a munkaterület egy üres pontjából kiindulva. Mivel ezek MEP-objektumok közötti kapcsolati elemek, az eszköz leggyakoribb használata során számos tulajdonság felülírásra kerül, és dinamikusan, az adott helyzethez kapcsolódóan kerül beállításra. (Pl. a metszet a MEP objektumok csatlakozói alapján kerül beállításra, vagy a színeket a rendszer alapján lehet kikényszeríteni, amelyhez tartoznak).
Beillesztés
A munkaterületen cső létrehozása kétféleképpen lehetséges: szabad csőindítási ponttal, vagy aljzatpontból kiindulva.
A cső rajzolása szabad cső kezdőponttal hasonló a 3D extrudálás, polivonal parancsokhoz, [...].
A tulajdonságsávban található parancsok tájékoztatnak az aktuális dőlésszögről, amely a megadott értékekkel vagy a szalag „dőlésszög módosítása” gombjával módosítható.
A „függőleges mozgás” lehetővé teszi, hogy a magasságban haladva folytassa az utat.
Az aktuális helyzettől függően a következő csőnek egy vagy két szabadságfoka lehet. Ezt a kék vagy zöld rács ikonra kattintva lehet megváltoztatni.
Lehetőség van egy magasságkülönbség megadására, vagy egy pontos magassági szint megadására, ahová a csőnek el kell mozdulnia.
Branches
To add a branch you can insert a fitting on the Pipe.
A T-szerelvény a gyors választási lehetőségek között szerepel, de más szerelvények is megtalálhatók a könyvtárban. Ezek beillesztése a Drag&Drop technikával lehetséges.
A szerelvény méretét a beillesztett cső alapján kell meghatározni. Módosítható az egyes szerelvények tulajdonságainak elérésével.
A zöld csomópontra kattintva egy cső rajzolását kezdjük el, amelynek tulajdonságai változatlanok maradnak a korábban meghatározottakhoz képest, kivéve az átmérőt, amelyet a kiindulási csatlakozó határoz meg.
Szerkesztés
Ha egy csőútvonal van kijelölve, az aktív nézettől függetlenül megjelennek a fogások. A teljes szegmens egyetlen polivonalként kerül felismerésre, ha a csövek össze vannak kötve egymással. A méretmegfogások mutatják a lökethosszúságokat és a lökethosszúságokat, ha vannak ilyenek.
A csomópontok olyan csatlakozók, amelyeket a szoftver automatikusan generál az egyes csövek elején és végén. A piros csomópontok összekapcsolt csatlakozókat, a zöld csomópontok szabad csatlakozókat jelentenek.
Más csövek indulhatnak (vagy érkezhetnek) egy szabad csatlakozóból.
Csomópontok eltolása és hozzáadása
Egy Grip-oldalra kattintva eltolhatja a kiválasztott oldalt.
Az eltolás irányát az aktív nézetből vesszük.
Például, ha a műveletet egy metszeti nézetben végezzük, a szoftver a függőleges irányba rögzíti, míg ha 2D nézetből, akkor a vízszintes eltolást hajtja végre.
Ugyanez a koncepció vonatkozik a „Csomópont hozzáadása” parancsra is.
A szoftver gondoskodik a csövek összekapcsolásáról a szögnek leginkább megfelelő szerelvénnyel, a szerelvények tulajdonságaiban meghatározott objektum segítségével.
Csatorna
A Duct entitás hasonlóan viselkedik, mint a Pipe. Ez is lehet kör vagy téglalap alakú. Az alapjául szolgáló parancs alapvetően ugyanaz, ugyanazokkal a modellezési lehetőségekkel. A projektelemek logikai szervezésében különbözik, a rendszer tulajdonságai esetében.
Kábelcsatorna
A kábelcsatorna a csőhöz hasonlóan viselkedik. Abban különbözik, hogy nyitott profillal és egy külön szerelvénytárral rendelkezik.
MEP modellezés és csatlakozások
A MEP-modellezés az építészettől eltérően sokkal merevebb modellezés, amely szorosan kapcsolódik az elemek összekapcsolásához. Az ARCHLine.XP olyan technikákat kínál, amelyek támogatják a felhasználót a modellezésben, megkönnyítve az elemek közötti kapcsolatokat.
Csatlakozó rajz
Mint korábban említettük, a szoftver lehetővé teszi, hogy egy csatlakozóból kiindulva csövet vagy csatornát illesszen be. Ez a parancs a menükön vagy a fogantyúkon keresztül érhető el.
A cső vagy csatorna az általános tulajdonságok beállításával kerül beillesztésre, kivéve a csatlakozóból vett szelvényt.
A menüből
Válassza a MEP menüből a „Rajzolás csatlakozóból” parancsot, majd válassza ki a MEP objektumot. A szoftver megjeleníti a rendelkezésre álló csatlakozókat. 2. Válassza ki a kiindulási csatlakozót.
Fogás
Közvetlenül válassza ki a fogást a MEP objektumon, és a menüben aktiválja a „Rajzolás a csatlakozóból” parancsot.
| Floor plan | 3D view |
A „Rajzolás a csatlakozóból” parancs az alapértelmezett parancs, amikor a csatlakoztatott zöld markolatra kattint. Ha a markolat piros, az azt jelenti, hogy a csatlakozó már foglalt.
Kézi csatlakozás
Egy cső vagy csatorna nyomon követésekor a szoftver lehetővé teszi, hogy hivatkozásokat vegyen, ha az egeret ugyanazon rendszer más csatlakozói fölé viszi (a rendszer fogalmát később ismertetjük), és megjelenik egy kék markolat. Ha befejezem a rajzolást egy kék markolat fölött, a szoftver összeköti a csövet vagy a csatornát a csatlakozóval.
Figyelem, a csatlakozás csak akkor történik meg, ha a cső 3D-ben van igazítva, tehát ha a rajz pontosan a csatlakozó felett végződik.
Automatikus útválasztás
A szoftver egy parancsot biztosít az útválasztáshoz. Az útválasztás egy algoritmus, amelyet a szoftver kiszámít, hogy automatikusan létrehozza a kapcsolatot két, azonos rendszerű MEP-objektum csatlakozója között.
Az Automatikus útválasztás parancs a többfunkciós menüből aktiválható, miközben egy cső vagy csatorna rajzolására kerül sor. Tehát ez egy alparancs.
Válassza ki a célobjektumot, a szoftver felajánlja az ugyanahhoz a rendszerhez tartozó csatlakozókat, amelyekhez csatlakozhat, ha van ilyen.
Az optimális útvonalat (polivonalat) a szoftver kiszámítja, de később szerkesztéssel módosítható.
Alapértelmezett magasság
A szoftver opcióin keresztül lehetőség van az egyes rendszertípusok alapértelmezett magasságának meghatározására. Ez azt jelenti, hogy az útválasztó algoritmus először megpróbálja az útvonalat a meghatározott magasságba vinni, majd megtalálja az optimális útvonalat a cél MEP-egység eléréséhez, és végül ismét felfelé halad a csatlakozáshoz.
Az ütközések elkerülése
Az automatikus útvonalválasztás algoritmusa magában foglalja a más MEP-egységek megkerülésének keresését.
Elágazások, csatlakozók útvonalvezetése
Két speciális útvonalvezetési technika létezik, amelyek a csőfutás megrajzolásának megkezdése előtt aktiválódnak. Ezért ezek főparancsok és nem alparancsok.
A csatlakozóból történő útválasztás lehetővé teszi, hogy egy eszköz csatlakozóját egy másik cső- vagy csatornaszakaszhoz csatlakoztassa, beillesztve az elágazást.
Először is, mindkét parancs arra kéri, hogy azonosítsa a cső vagy a főcsatorna szakaszának egy pontját, ahová a szerelvényt be kell illeszteni, majd a csatlakoztatás módjában különböznek. Az első automatikus csatlakozást végez.
A második lehetővé teszi a felhasználó számára, hogy kézzel vezesse az útvonalat (hogy később opcionálisan használhassa az automatikus útvonalválasztás alparancsot).
Méretek
A méret kézi módosítása
A szoftver a System koncepciónak köszönhetően képes a csatlakoztatott csövek vagy csatornák hálózatát szakaszokra és elágazásokra bontani.
Elágazás: szakaszok halmaza, az egyik elágazás és a másik között.
Szakasz: Egyetlen cső- vagy csatornadarab két csomópont között.
Lehetőség van egy szakasz vagy egy teljes ág szakaszának módosítására. A szoftver gondoskodik az áramkör összekötve tartásáról, a redukciók hozzáadásáról vagy a szerelvények tulajdonságainak módosításáról...
| Teljes ág szerkesztése |
| Egyetlen rész szerkesztése |
Egészségügyi vízrendszer
A használati melegvíz-modell létrehozható MEP-objektumok segítségével, amelyekhez használati melegvíz vagy használati hidegvíz típusú csatlakozókat lehet használni.
A kazán és a csapok elhelyezése után a MEP objektumok megfelelő csatlakoztatásával lehet folytatni.
Célszerű 2 különböző magassági szintet beállítani a vezetékekhez, hogy elkerüljük a csövek közötti átfedéseket.
Fűtési rendszer
A fűtési rendszer modellje MEP-objektumok segítségével építhető fel, a Supply Hydronic vagy Return Hydronic típusú csatlakozókkal.
A kazán és az elosztók elhelyezése után a MEP objektumok megfelelő összekötésével lehet folytatni.
Célszerű 2 különböző magassági szintet beállítani a vezetékekhez, hogy elkerüljük a csövek közötti átfedéseket.
Fűtési rendszer (padlófűtés)
A fűtési rendszer modellje MEP-objektumok segítségével építhető fel, amelyeknek a csatlakozói a Supply Hydronic vagy Return Hydronic típusúak.
A „padlófűtés” funkció lehetővé teszi a csőpár automatikus nyomon követését. A generálásból származó elemet az üzem végpontjának kell tekinteni, és ezért az elosztóhoz kell csatlakoztatni.
Először határozzunk meg egy zárt sokszöget, amelyen belül a szerpentin kiszámítható.
Ezután határozzon meg egy belépési pontot a csövek számára, majd adja meg az átmérőt, a magasságot és a csövek közötti távolságot.
A mennyiségekre vonatkozó információk kinyeréséhez TAG-eket és ütemterveket adhat hozzá.
Mechanikus szellőztető rendszer
A modell MEP-objektumok felhasználásával építhető meg, a Supply Air vagy Return Air típusú csatlakozókkal.
A szellőztetőegység és a gyűjtőcsövek elhelyezése után a MEP-objektumok megfelelő összekapcsolásával lehet folytatni.
Egy különleges „Add flexible” funkció lehetővé teszi a cső csatlakoztatását a terminálokhoz.
Sablonok megtekintése
A nézetsablonok segítenek növelni a MEP-tervezés pontosságát és megbízhatóságát a BIM-modellben.
Lehetővé teszi a 3D nézetek megjelenésének megváltoztatását az építészeti és MEP szakterületek között.
1. A Csak MEP nézet csak a MEP elemeket jeleníti meg.
2. A MEP elsődleges nézet az épületet mutatja a háttérben és az MEP elemeket egyértelműen az előtérben.
3. Az építészet elsődleges nézet pontosan az ellenkezőjét mutatja.
4. A csak építészet nézet csak az épületet mutatja.
5. Az alaphelyzetbe állított nézet mindent megjelenít.
A parancs lehetővé teszi egy 3D-nézet vagy egy szelvénynézet tulajdonságainak módosítását a mep modell és az építészeti modell együttes megtekintéséhez.
Lehetőség van például a MEP-elemek elsődleges módban történő megjelenítésére, amelyek így egymásra helyezve jelennek meg, vagy csak a MEP-modell megjelenítésére.
Lehetőség van e lehetőség kombinálására a 3D-nézet megjelenítésének tipikus lehetőségeivel.
--------------------------------------------
Integrált méretezés számítás
Az integrált méretezés számítás lehetővé teszi a tervezők számára, hogy számításokat végezzenek a tervezési folyamat során, megjelenítsék a tervezett rendszer helyét a térben, és szükség esetén összehasonlítsák a tervezési alternatívákat. A számítás végrehajtja az automatikus átméretezést és a tervezési követelményeknek való megfelelés ellenőrzését.
Nézet sablonok
A Nézetsablonok segítik a nézetek áttekintését az építészeti és az MEP szakági tartalom szerint. Lehetőségek:
1. Kizárólag MEP nézet: csak a MEP elemeket jeleníti meg.
2. MEP elsődleges nézet a MEP elemeit mutatja az előtérben, és az épületet háttérben.
3. Építészet elsődleges nézet az épület elemeit mutatja az előtérben, és a MEP elemeit háttérben.
4. Építészet kizárólag nézet csak az épületet mutatja.
Anyaglisták
Anyaglisták készíthetők a projektben lévő összes szerelvényről és MEP elemekről.
Hozzászólások
0 hozzászólás
A cikkhez nem írhatók újabb hozzászólások.